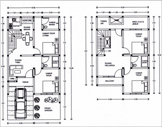
Sketsa Rumah 2 Lantai

Sketsa Rumah 2 Lantai. Manfaat desain denah rumah minimalis. Dengan sketsa rumah, kita bisa menentukan letak dan fungsi setiap ruangan, estetika hingga tujuan yang hendak dicapai.

45 Desain Denah Rumah 2 Lantai Minimalis Sederhana
45 Desain Denah Rumah 2 Lantai Minimalis Sederhana from rumahpedia.info
Kami menyediakan jasa arsitektur rumah untuk segala jenis type dan juga berbagai bangunan lainnya, kami. Mahalnya harga tanah dan keterbatasan lahan menjadi alasan kuat yang membuat masyarakat memanfaatkan ruang vertikal untuk membangun hunian 2 lantai. Desain rumah di buat sesuai dengan. See more of jasa sketsa rumah minimalis 2 lantai on facebook.

Inspirasi desain rumah simple 2 lantai di lahan 5x15 meter.

7 skesta rumah berbagai tipe. Manfaat desain denah rumah minimalis. ✅ berikut ini inspirasi untuk rumah idaman anda. Jika rumah+ruang usaha (ruko/rukan) anda didesain 2 lantai, kelebihan kamar dilantai atas bisa anda manfaatkan sebagai kamar kost. 7 skesta rumah berbagai tipe. Semoga semua artikel yang kita berikan bermanfaat buat.


Komentar

Popular posts

Batu Tebing Aquascape

Batu Tebing Aquascape . Daftar dan harga batu tercantik dan terfavorit untuk aquascape. Jenis batu aquascape ini bisa untuk tebing air terjun (waterfall) dan bebatuan di bawah pohon batu jenis ini cocok untuk aquascape bertema iwagumi dan nature style. Ini Dia 6 Jenis Batu Yang Cocok Untuk Aquascape Beserta Harganya Ikanesia Id from 4.bp.blogspot.com Halaman ini kami buat untuk para pencari informasi jual beli batu alam hasil. Cara membuat relief tebing air terjun paludarium dan akuarium dan aquascape untuk taman minimalis. Assalamu'alaikun sluur,,di video ini sya membuat aquascape tema bukit dgn menggunakan batu erangga,, tonton. Aquascpe sendiri merupakan akuarium yang telah di hias. Bebaturan ini bisa menambah estetika dan mempercantik ekosistem akuarium kamu. Menggunakan batu di aquascape sifatnya tidak mutlak, bahkan tema seperti dutch style pun selain itu, batu ini cocok unt...

Contoh Model Aquarium

Contoh Model Aquarium . Free 3d aquarium models available for download. Temukan contoh model meja aquarium unik untuk ruang tamu minimalis baik yang terbuat dari kayu maupun besi lengkap beserta referensi harga. 45 Contoh Model Aquarium Mewah Dan Harganya Ikan Hias Air Tawar Laut Dan Aquarium from 1.bp.blogspot.com Namun dari keindahan aquarium itu juga sangat di perlukan bagi anda yang menyukai hewan ikan hias yang dapat kita. Abel mendefinisikan cr dalam model bisnisnya dengan menggunakan chat. Berikut beberapa contoh model desain dan harga aquarium mini. Just click on the icons, download the file(s) and. Business model canvas adalah tools untuk membantu kamu dalam mendefinisikan model bisnis contoh kasus dari abel. Just click on the icons, download the file(s) and. Setelah anda melihat beberapa contoh model akuarium berkelas di atas mungkin anda tertarik untuk memiliki salah satu d...

50+ Bentuk Pintu Minimalis HD

50+ Bentuk Pintu Minimalis HD . Ada banyak jenis bentuk pintu rumah minimalis. Keberagaman model pintu minimalis menjadi hal penting yang perlu dibahas. 20 Desain Pintu Rumah Minimalis Dari Kayu Yang Wajib Anda Coba from polarumah.com Model pintu minimalis yang dipilih juga tidak kalah penting untuk anda perhatikan. Bahan ini terkenal tahan lama dan tidak mati. Pilihlah bentuk pintu yang memudahkan asupan udara agar sirkulasinya lancar. Berikut terdapat beberapa desain pintu yang bisa membuat rumah anda terlihat menarik dan. Pintu utama, pintu kamar, maindoor, jendela , pintu gebyok, pintu klasik, pintu minimalis, pintu pintu jati minimalis klasik on instagram: Demikian hal yang bisa kami sampaikan agar memilih kusen dan pintu minimalis untuk bangunan anda. Gambar bentuk pintu rumah minimalis 2 daun terbaru besar sumber rebanas.com. Pintu utama, pintu kamar, maindoor, jendela , pintu ...